Dầm bản bê tông cốt thép thường thi công theo biện pháp lắp ghép. Dầm thực chất là dạng kết cấu bản được chia theo phương dọc cầu thành các dầm bản đặc bề rộng xấp xỉ 1000mm để khi cầu có bề rộng bao nhiêu bố trí bầy nhiêu dầm chủ.
Dầm bản lắp ghép có ưu điểm thi công nhanh, chiều cao kiến trúc nhỏ, đây là dạng kết cấu áp dụng phổ biến cho các công trình cầu giao thông nông thôn hoặc miền núi.
Dạng dầm bản BTCT thường có thể đạt chiều dài dầm tới L=2-9m, các bản vẽ chiều dài dầm khác các bạn tìm mình sẽ up lên trên hệ thống.
Nội dung tính toán thiết kế và bố trí cốt thép hoặc các bản vẽ ứng với các chiều dài dầm khác các bạn có thể tải các file mà mình up trên hệ thống.
Chi tiết bản vẽ Dầm bản bê tông cốt thép thường L=6m
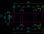
File cam kết giống 100% như ảnh bên dưới:
- Mặt cắt đứng dầm L=6m

- Mặt cắt ngang và bố trí cốt thép dầm chủ.

Bảng vẽ cũng bao gồm luôn thiết kế thi công + Thuyết Minh








Thạch Khắc Thành (verified owner) –
File hay quá, cảm ơn
Võ Sơn Lâm (verified owner) –
File rất hay, đầy đủ, ủng hộ lần sau
Hoàng Thanh Hải (verified owner) –
Sản phẩm rất tốt, tôi đã sử dụng để vẽ các bản thiết kế của mình và thật sự rất hài lòng.