THUYẾT MINH:
1. ĐƠN VỊ: KÍCH THƯỚC TRONG BẢN VẼ DÙNG ĐƠN VỊ CENTIMET, CAO ĐỘ THEO HỆ CAO ĐỘ QUỐC GIA DÙNG ĐƠN VỊ MÉT.
2. QUY MÔ CÔNG TRÌNH: VĨNH CỬU.
3. CÁC TIÊU CHUẨN KỸ THUẬT THIẾT KẾ:
3.1. KHỔ CẦU:
+ PHẦN XE CƠ GIỚI : 2 x 3.50 = 7.00 m
+ PHẦN XE THÔ SƠ : 2 x 2.00 = 4.00 m
+ LAN CAN : 2 x 0.50 = 1.00 m
TỔNG CỘNG 12.00 m
3.2. TẢI TRỌNG THIẾT KẾ:
– ĐOÀN XE H30 – XB80, NGƯỜI ĐI BỘ 300 kG/m2.
3.3. TĨNH KHÔNG THÔNG THUYỀN :
– TĨNH CAO : H=2.5m.
– TĨNH NGANG : B=15m.
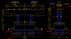
4. ĐẶC ĐIỂM KẾT CẤU:
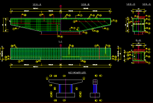
4.1. KẾT CẤU NHỊP:
+ BỐ TRÍ THEO SƠ ĐỒ 15m+24.54m+15m. CHIỀU DÀI TOÀN CẦU L=55.44m TÍNH ĐẾN MÉP SAU TƯỜNG NGỰC HAI MỐ.
+ MẶT CẮT NGANG CẦU GỒM 7 DẦM BTCT ƯST M500 MẶT CẮT CHỮ “I” L=24.54m, HOẶC 7 DẦM BTCT THƯỜNG M400 MẶT CẮT CHỮ “T” L=15m.
+ TRẮC DỌC MẶT CẦU TẠO THEO ĐƯỜNG CONG LỒI BÁN KÍNH R=2500M.
+ DỐC NGANG MẶT CẦU 2 MÁI 2% ĐƯỢC TẠO BẰNG LỚP BÊ TÔNG M300 CHIỀU DÀY THAY ĐỔI TỪ 4~15cm (NHỊP T-15m) HOẶC THAY ĐỔI CHIỀU DÀY ĐÁ KÊ GỐI (NHỊP I-24.54m).
+ MẶT CẦU TÍNH TỪ TRÊN XUỐNG GỒM CÓ:
– BÊ TÔNG NHỰA NÓNG HẠT MỊN DÀY 5cm.
– LỚP TẠO DỐC BTCT M300 DÀY 4~15cm HOẶC BẢN MẶT CẦU BTCT M300 DÀY 18cm.
+ GỜ CHẮN XE BẰNG BTCT M250, TAY VỊN BẰNG THÉP MẠ KẼM.
+ GỐI CẦU: DÙNG GỐI CAO SU.
+ KHE CO GIÃN: DÙNG KHE CO GIÃN CAO SU CHIỀU RỘNG 5cm.
4.2 KẾT CẤU MỐ: + MỐ BẰNG BTCT M300 ĐỔ TẠI CHỖ.
+ MÓNG MỐ: GỒM 16 CỌC BTCT M300 45x45cm, CHIỀU DÀI MỖI CỌC LÀ 52m, MŨI CỌC ĐẶT VÀO LỚP SÉT TRẠNG THÁI NỬA CỨNG KHOẢNG 3~5m.
+ ĐẤT ĐẮP TRƯỚC MỐ VÀ TALUY HAI BÊN MỐ TRONG PHẠM VI ĐƯỜNG ĐẦU CẦU ĐƯỢC GIA CỐ BẰNG ĐÁ HỘC XÂY VỮA M100 DÀY 20CM TRÊN LỚP ĐÁ DĂM ĐỆM DÀY 10CM. ĐẤT NỀN DƯỚI CHÂN KHAY ĐƯỢC GIA CỐ BẰNG CỌC TRÀM $ NGỌN > 3.5cm, L=3m VỚI MẬT ĐỘ 25 CÂY/m2.
+ SAU MỐ ĐẶT BẢN QUÁ ĐỘ DÀI 4.0m TRÊN SUỐT CHIỀU RỘNG PHẦN XE CHẠY.
4.3 KẾT CẤU TRỤ: + TRỤ BẰNG BTCT M300 ĐỔ TẠI CHỖ.
+ MÓNG TRỤ: GỒM 14 CỌC BTCT M300 45x45cm, CHIỀU DÀI MỖI CỌC LÀ 50m. MŨI CỌC ĐẶT VÀO LỚP SÉT TRẠNG THÁI NỬA CỨNG KHOẢNG 3~5m.







Full
